Ficha
PROYECTO RESIDENCIAL EXCLUSIVO EN VALENCIA CAPITAL
Valencia - REF. 1187

842 m2
venta: 1.900.000 €
Descripción

🏗️ PROYECTO RESIDENCIAL EXCLUSIVO EN VALENCIA CAPITAL


Conversión a 10 viviendas + 8 garajes | Proyecto listo para ejecutar


Presentamos una oportunidad de inversión residencial llave en mano en una de las zonas con mayor proyección y demanda de Valencia: Calle Fuente de San Luis 134–136, entorno plenamente consolidado y con alta presión residencial y de alquiler.


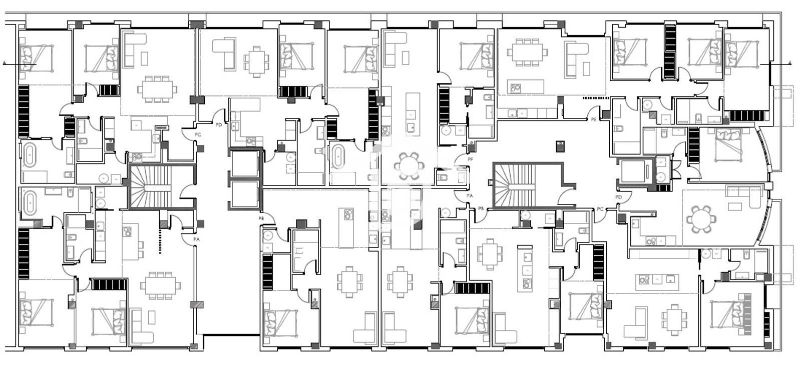
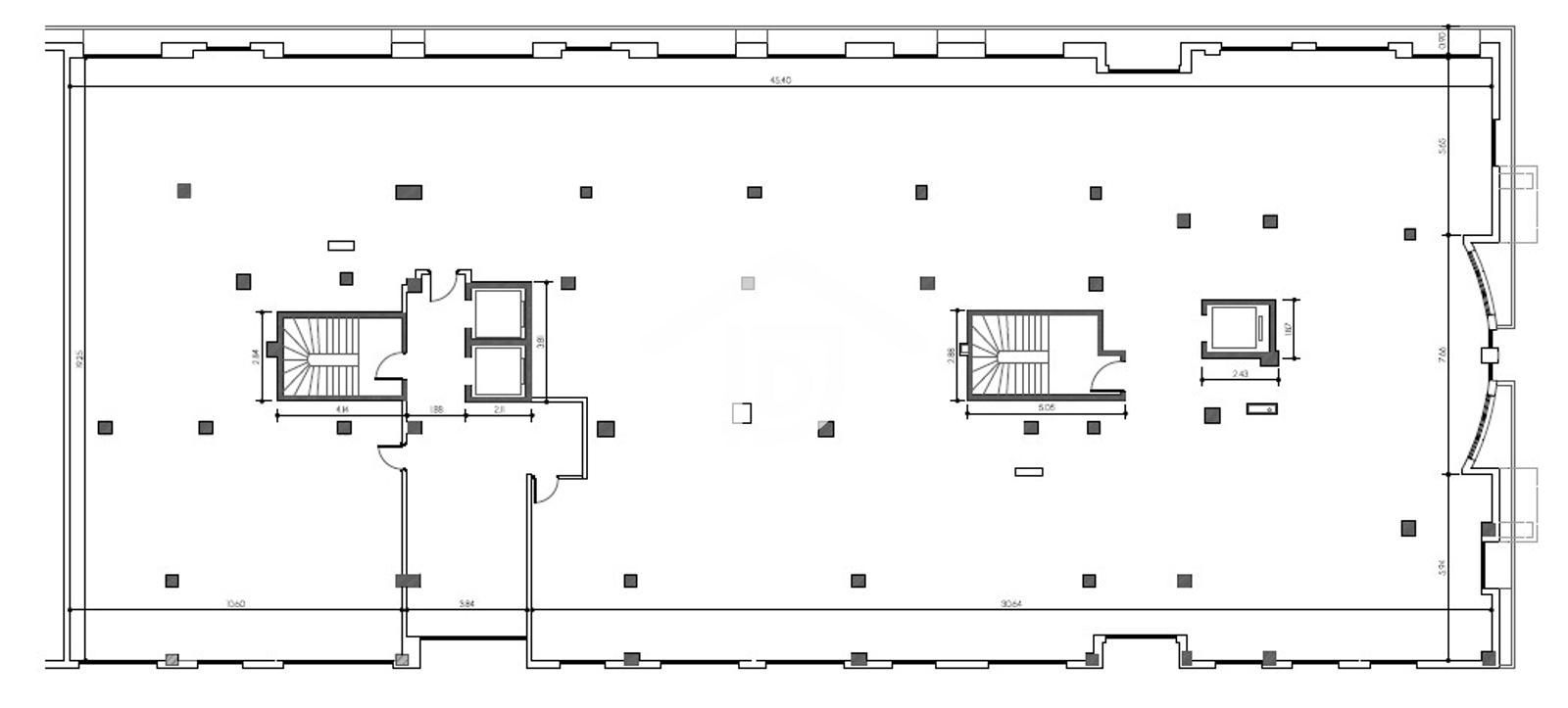
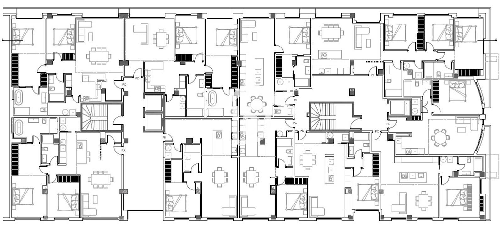
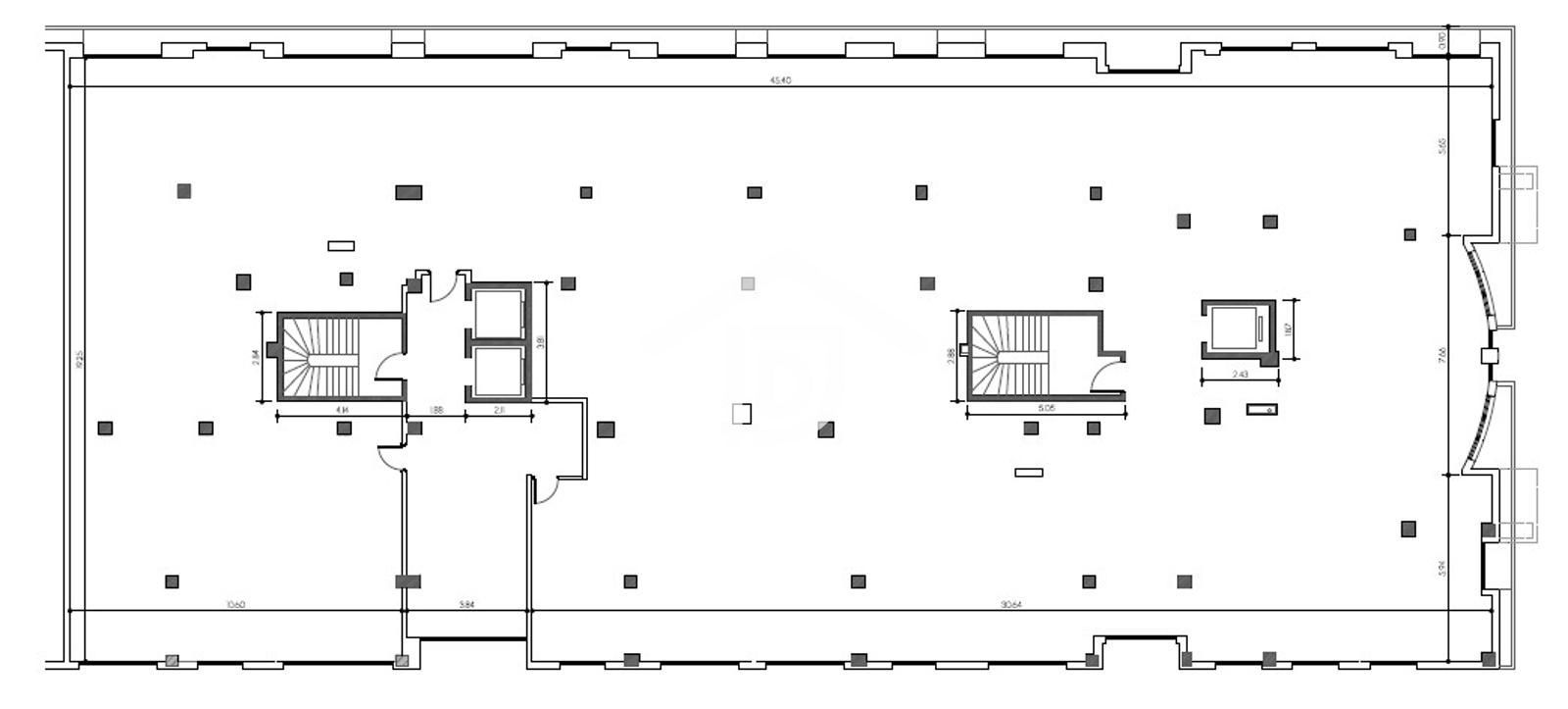
📐 El proyecto contempla la conversión de un edificio de oficinas en:


10 viviendas familiares de distintas tipologías


8 plazas de garaje


Distribución moderna, eficiente y optimizada para venta o alquiler


Proyecto básico y ejecutivo completamente desarrollado


Cambio de uso permitido por estatutos


Licencias tramitables sin oposición de la comunidad


🏢 Datos clave del activo


Superficie total: 875 m² construidos / 813 m² útiles


Documentación técnica completa


Estado actual óptimo para inicio inmediato de obra


Inicio de obra previsto: enero 2026


Presupuesto de ejecución cerrado: 850.000 €


📍 Ubicación estratégica

A menos de 5 minutos andando de:


Palacio de Justicia de Valencia


Roig Arena (nuevo polo de atracción residencial y de alquiler)


Centro Comercial El Saler


Ciudad de las Artes y las Ciencias


Excelentes conexiones por A-7, V-31, Av. Ausiàs March y transporte público EMT. Zona con alta demanda tanto de compra como de alquiler.


💰 Opciones de inversión


Compra en estado actual: 1.900.000 €

Ideal para promotores o fondos que quieran ejecutar la obra y maximizar márgenes.


Proyecto llave en mano: 3.100.000 €

Pensado para inversor patrimonial que busca producto terminado sin gestión ni estructura propia.


📈 Escenarios de rentabilidad


Venta unitaria: ROI estimado ≈ 25% | Ciclo 9–12 meses


Alquiler tradicional:

Renta media ≈ 1.300 €/mes por vivienda + garajes

ROI bruto ≈ 5,3% – 6,1%


Media estancia / corporativo: ROI bruto ≈ 6–8%


Corta estancia: ROI bruto ≈ 8–10%


Retorno total estimado (renta + revalorización): 11–13% anual


🔑 Un proyecto sólido, escalable y listo para ejecutar, en una ubicación prime de Valencia capital, con números claros y múltiples salidas de inversión.


📞 Información confidencial bajo NDA.

Contacta para dossier completo, planos, tabla de rentabilidades y visita técnica.

Características
Precio Venta 1.900.000 €
Precio/m² 2.257
Año de construcción 1993
Construidos 842 m2
Útiles 813 m2
Estado A REFORMAR
Calificación Energética En trámite
Escalas de eficiencia



Tu agente
Juan Carlos Saiz Hinarejos
Contáctanos

Si deseas más información sobre esta propiedad, por favor, rellena el formulario.

 Sí, he leído y/o acepto las Condiciones de uso y la Política de privacidad
Galería